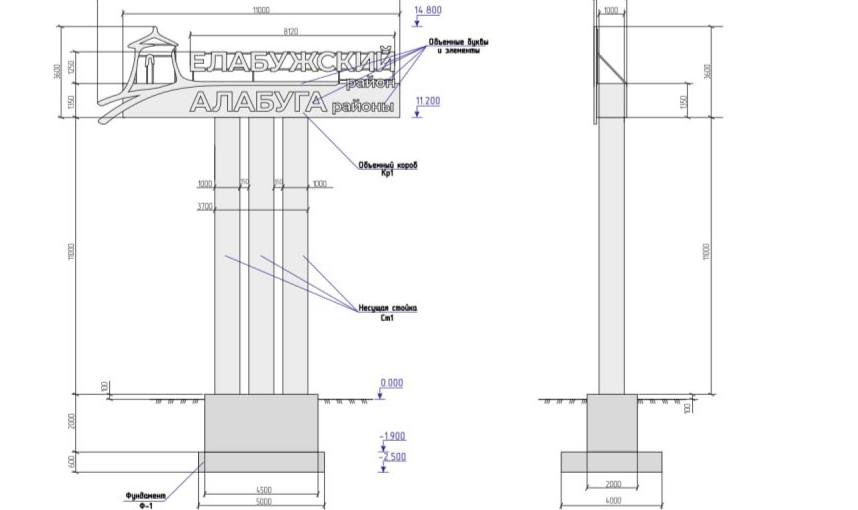
Въездная стела появится на границе Елабужского района, стоимость работ составит 6,9 млн рублей. Соответствующий тендер появился на сайте госзакупок. Заказчиком выступает исполком Елабужского района, средства выделят из местного бюджета. Срок выполнения работ с момента заключения контракта — 30 ноября 2025 года.
В перечне работ значатся земляные работы, заливка бетоном, установки опалубки, установка арматурного каркаса, обратная засыпка, а также антикоррозионная защита строительных конструкций.
Напомним, в 2019-м в Елабуге запустили конкурс на лучшие эскизные проекты стел, которые должны были заменить устаревшие конструкции на въезде в верхнюю и старую часть города. Конкурсные работы должна была оценить комиссия из 8 человек, имена которых не раскрывались.
в Telegram
Комментарии 12
Редакция оставляет за собой право отказать в публикации вашего комментария.
Правила модерирования.